Si vous êtes intéressé par ce style de bien nous vous engageons à faire une « Alerte E-mail » sur la page d’accueil de notre site AFIM-IMMO. Vous recevrez en avant-première l’information sur un nouveau bien qui correspondra à vos critères exprimés.
Rebberg 184 m2 plus Dépendance 70m2 sur 16 ares sans travaux Villa moderne au calme
Sur les hauteurs du Rebberg, dans un cadre unique, au fond d’une allée privative, maison d’architecte au style actuel ouvert et convivial de 184m2 construite en 2006 sur plus de 16 ares (1616m2) invisible de la rue, avec belle dépendance de plus de 70m2. Dans le calme et la verdure du Rebberg, de grandes fenêtres et baies vitrées laissent entrer la lumière dans toute la maison, sur les deux niveaux. Piscine de 8m x 4m et terrasse couverte de 16 m2, 7 chambres et 2 garages avec portes électriques dont 1 de 32m2. Espace Sauna vitré haut de gamme avec lavabo, douche et WC suspendu séparé.
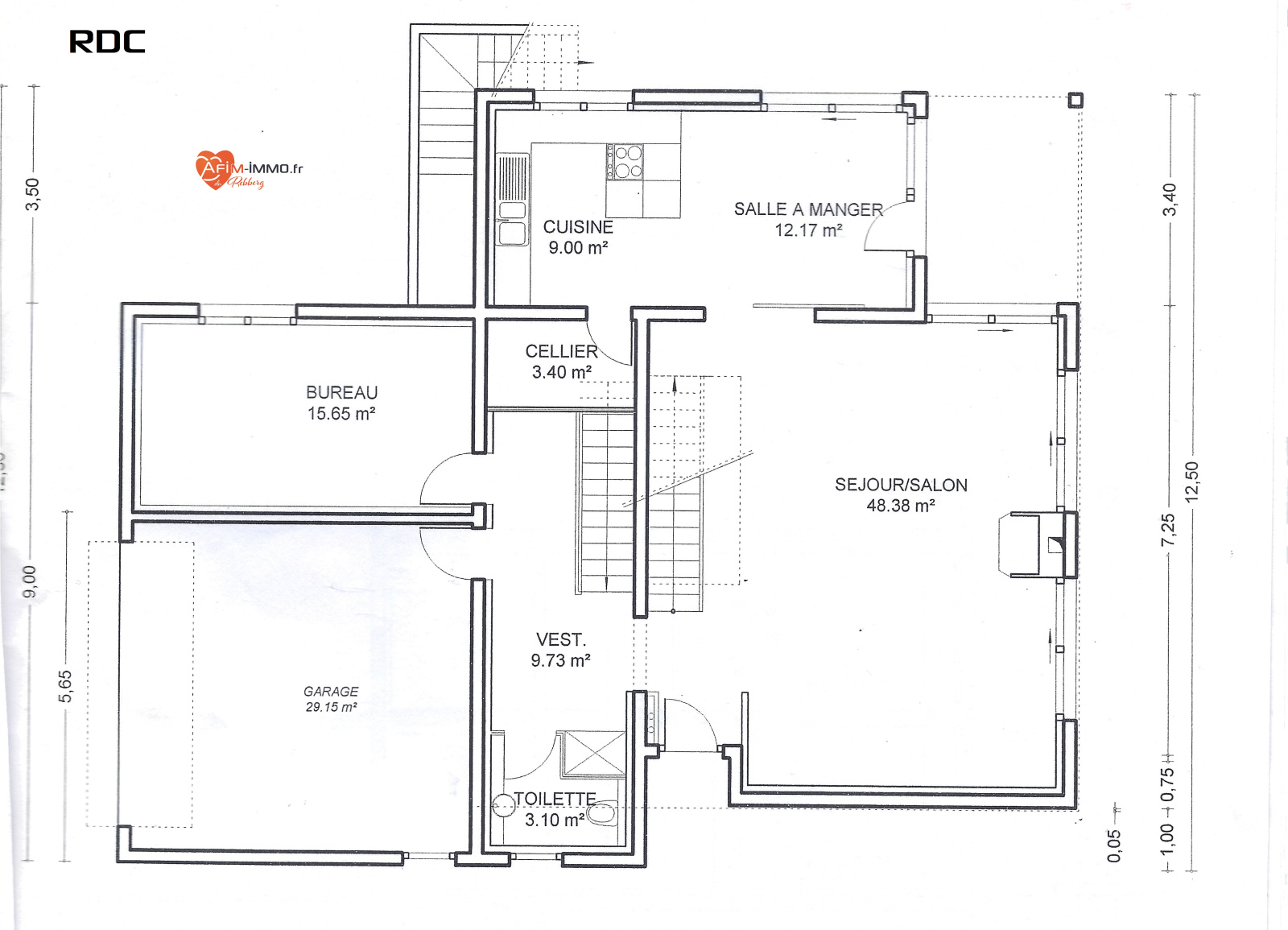
Au rez-de-chaussée, unité de carrelage : une entrée donne sur un salon de 46 m2 avec sa cheminée équipée d’un système de récupération de chaleur constituant un chauffage d’appoint confortable pour l’ensemble de la maison. Le salon orienté sud et ouest, communique directement avec la cuisine moderne de 10m2 ouverte sur son coin repas (14m2) pouvant être isolés de l’espace de vie par 2 portes coulissantes à galandage qui disparaissent à l’intérieur du mur. Un bureau de 17m2 peut être utilisé en chambre, un vestiaire de 3m2 à côté d’un WC suspendu de 2m2.
Au premier étage, vue sur les Vosges : accès par un escalier stylisé donnant sur une lumineuse mezzanine de 11 m2 avec 2 skydomes sécurisés. Cet espace avec de belles perspectives, dessert 4 chambres dont 2 avec fenêtres panoramiques (16 - 14 – 13 – 12 m2), 2 salles de bain (5 et 9m2), lingerie (5m2) et 2 WC suspendus. La chambre parentale (16m2) dispose d’une salle de douche avec lavabo et WC privatif ainsi que d’une baie vitrée panoramique. Une chambre de 12m2 possède un balcon de 18m2.
Au Sous-sol, 101m2 : plusieurs pièces dont 2 donnant sur une cour anglaise (terrasse privative) par une baie vitrée. Une cave. Une grande salle de jeux.
Entrées de la propriété et de la maison sécurisées - 4 WC - 3 salles d’eau ou de bain –7 chambres - 2 garages. Pompe à chaleur air-eau, double -vitrage. DPE B et A.
